Dov Kadin
dovkadin.bsky.social
Dov Kadin
@dovkadin.bsky.social
Work at SACOG to plan for a more compact and sustainable Sacramento region. City of Sacramento Planning Commissioner. Posts are my own.
Should be higher but proud of this city
April 9, 2025 at 1:54 AM
You can use SB 684 coupled with our missing middle ordinance to do several of these on lots across Sacramento right now. There is a ton of demand for smaller for sale products like this on the grid and inner ring suburbs.
March 13, 2025 at 12:17 AM
Great turnout at Sacramentos small development workshop today!
March 8, 2025 at 5:28 PM
….hell ya
February 12, 2025 at 3:44 AM
JT!!
January 23, 2025 at 1:12 AM
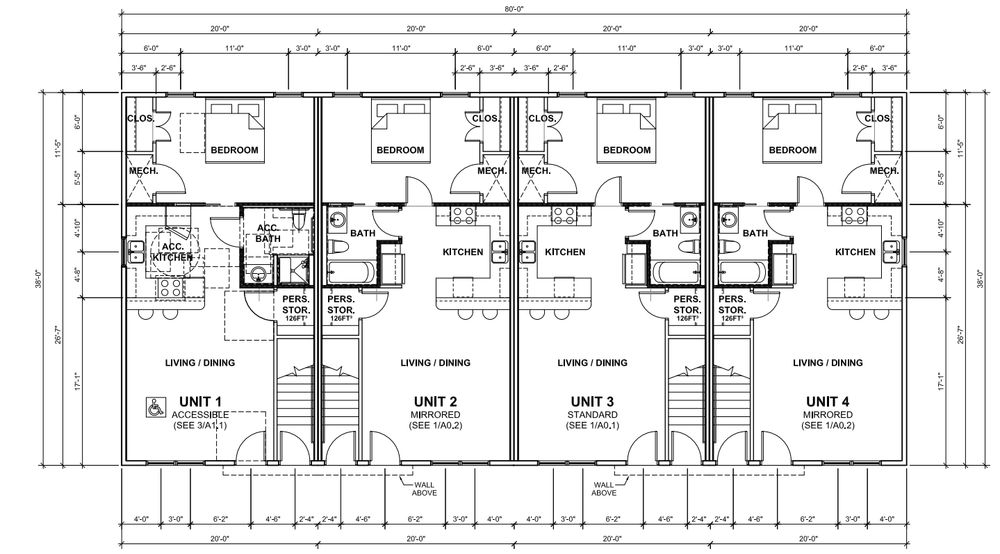
REALLY cool project resubmitted in Oak Park on the corner of 3rd Ave and 36th. It's 6 townhome looking lots, except there is a studio on each floor for a total of 18 units. Ground floor units open onto the street, 2nd and 3rd floor units use the external stairway behind. Comes out to 163 units/acre.
January 16, 2025 at 9:20 PM
Start to add “very low vehicle travel areas” as an additional alternative to other bills that use transit proximity as the defined area (like 2097, the 743 ceqa exemption, 2011 extra density, etc). Would also task OPR (or I guess LCI now) with consolidating spatial data from big 4 regions to map it
December 14, 2024 at 5:49 AM
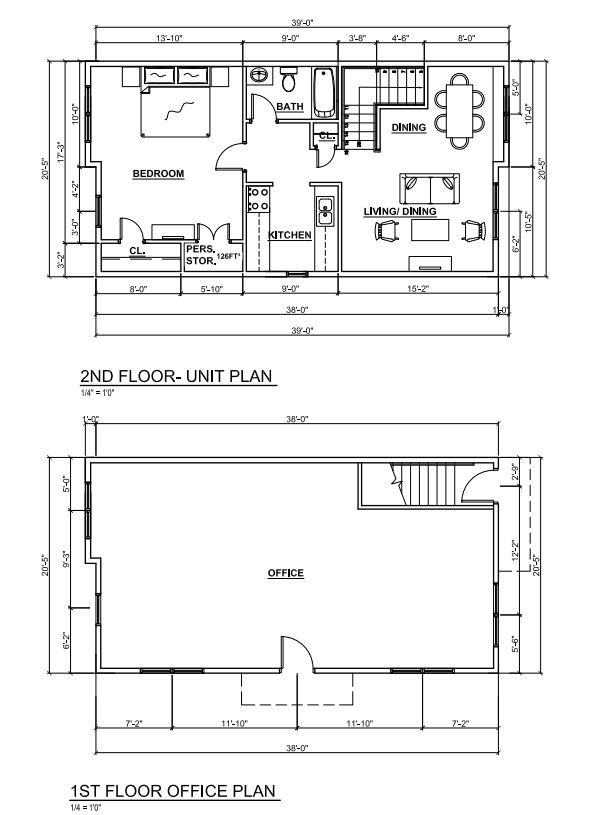
Here are the floor plans. I guess there is still some educating to do with developers that 2097 exists and where it applies. But the fact that this pencils makes me optimistic about Sac City's reforms.
December 5, 2024 at 8:01 PM
Little 9 unit project in unincorporated Sac County down on Stockton and 66th WITH 3 deed restricted affordable units to get a density bonus. One interesting thing I've been seeing is projects that qualify for 0 parking under AB 2097 using density bonus to reduce required parking.
December 5, 2024 at 8:01 PM
Troubling push notification to wake up to this morning
November 27, 2024 at 4:32 PM
November 20, 2024 at 8:31 PM
He’s been a big supporter of the incredibly progressive reforms we passed through the general plan. He’s unequivocally pro housing.
November 20, 2024 at 2:49 AM
This was very much the case for Sacramento, which had a multi year parking reform schedule before 2097 then, when it realized parking mins were gone across most of the city, just finished the job with no fan fare
November 20, 2024 at 1:38 AM
Ryan isn’t over here yet but he’s calling the Sacramento mayoral race for Kevin McCarty. Unbelievably close primary (where 500 votes separated 4th from 2nd) and now general election.
November 20, 2024 at 1:15 AM
Another lifted bungalow in oak park becoming a duplex
November 19, 2024 at 10:27 PM
Any chance the wedding was at ironstone? Just went a couple weeks ago it was fantastic.
November 18, 2024 at 5:27 AM
This area of gold country is super underrated (Amador city, Murphy’s, big trees state park, pine grove etc). Fantastic wine, good snow, sequoias, short term rental cabins for half the price of Tahoe or even like Nevada City. Big fan.
November 18, 2024 at 5:15 AM
Follow up question here where he confirmed. Is this an interpretation issue or is this an actual legal grey area?
November 15, 2024 at 5:05 PM
Last night at planning commission i was told staff looked into local building code changes to allow for single stair and RBC threshold and found it’s illegal under ca law. This runs completely counter to my understanding so long as it meets performance standards.
November 15, 2024 at 5:05 PM
We out here building housing (as long as you compare us to anemic coastal ca regions and not high growth regions outside California...)
November 14, 2024 at 7:40 PM
Sexy
October 28, 2024 at 5:50 PM
www.zillow.com/homedetails/...

10k sqft lot in east sac for $250k. Lot is 50 x 175. Under our now active missing middle ordinance, could easily do 8-9 of these townhomes all the way back.
October 22, 2024 at 2:59 PM